|
|
||||||||||||||||||||||||||||



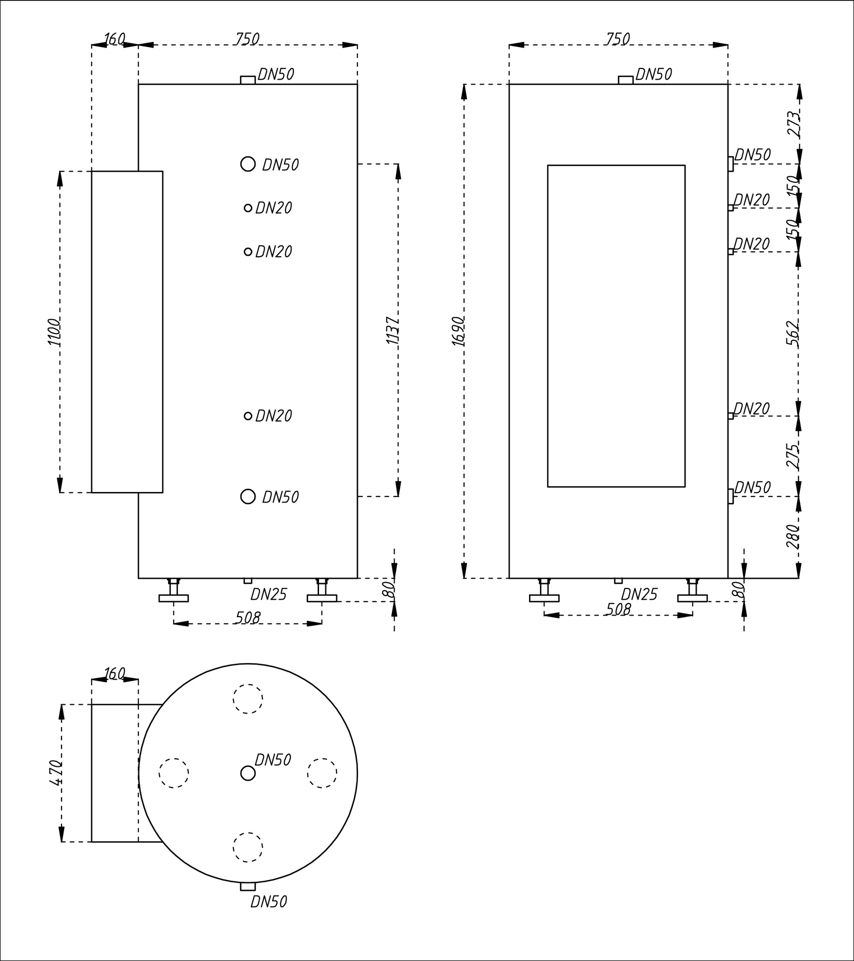
455L電熱水器
漏電斷路器 自動化控制器
電加熱管 電流表

鎂棒 安全閥
卷板機
折彎機 5T行車

ISO9001證書 CE認證證書